新聞中心
產品展示
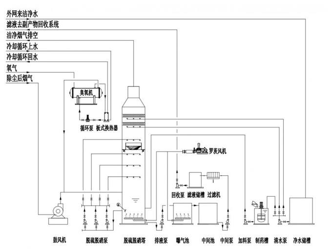
臭氧脫硝設備介紹
發布者:朗逸環保 發布時間:2019-5-23
臭氧脫硝裝置設備簡單,運行和維護都很便捷,投入費用要低于活性炭和SCR法。

臭氧脫硝法適用在濕法脫硫系統,利用脫硫塔作為吸收塔,脫硫液作為吸收液;氨氣中的NOX經臭氧臭氧氧化后,通過吸收液吸收生成硝酸鹽外排。對于干法或是半干法脫硫系統,就需要增加吸收塔,用于吸收臭氧氧化后的NO2,NO3,N2O5等氣體,生成硝酸鹽,可以后所投入費用及運行費用都比濕法高。
在脫硝量需求比較小的時候,臭氧脫硝工藝運行費用比活性炭和SCR法要低。臭氧脫硝工程具有僅次于氟的強氧化性,完全可以把煙氣等惡劣環境中的NO氧化成高價態,并且提高煙氣中氮氧化物的水溶性,從而通過濕法洗脫。
免責聲明:本網站發表的部分公開資料來源于互聯網,目的在于傳遞更多信息及用于網絡分享,并不代表本站贊同其觀點和對其真實性負責。

